このページを印刷する
- 賃料
-
23.8533万円
- 管理費等
- 55,473円
- 敷金
- 130.1094万円
| 所在地 | 長崎県西彼杵郡長与町嬉里郷 |
|---|---|
| 建物名 | ASKビル |
| 交通 |
|
| 特徴 |
| 築年月 | 2012/5 | 新築/中古 | 中古 |
|---|---|---|---|
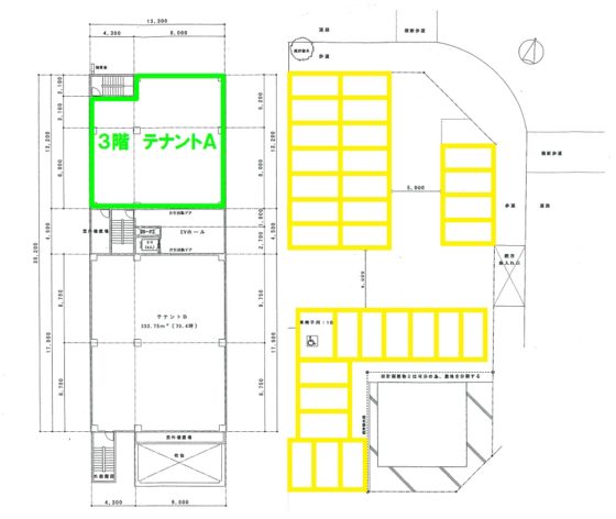
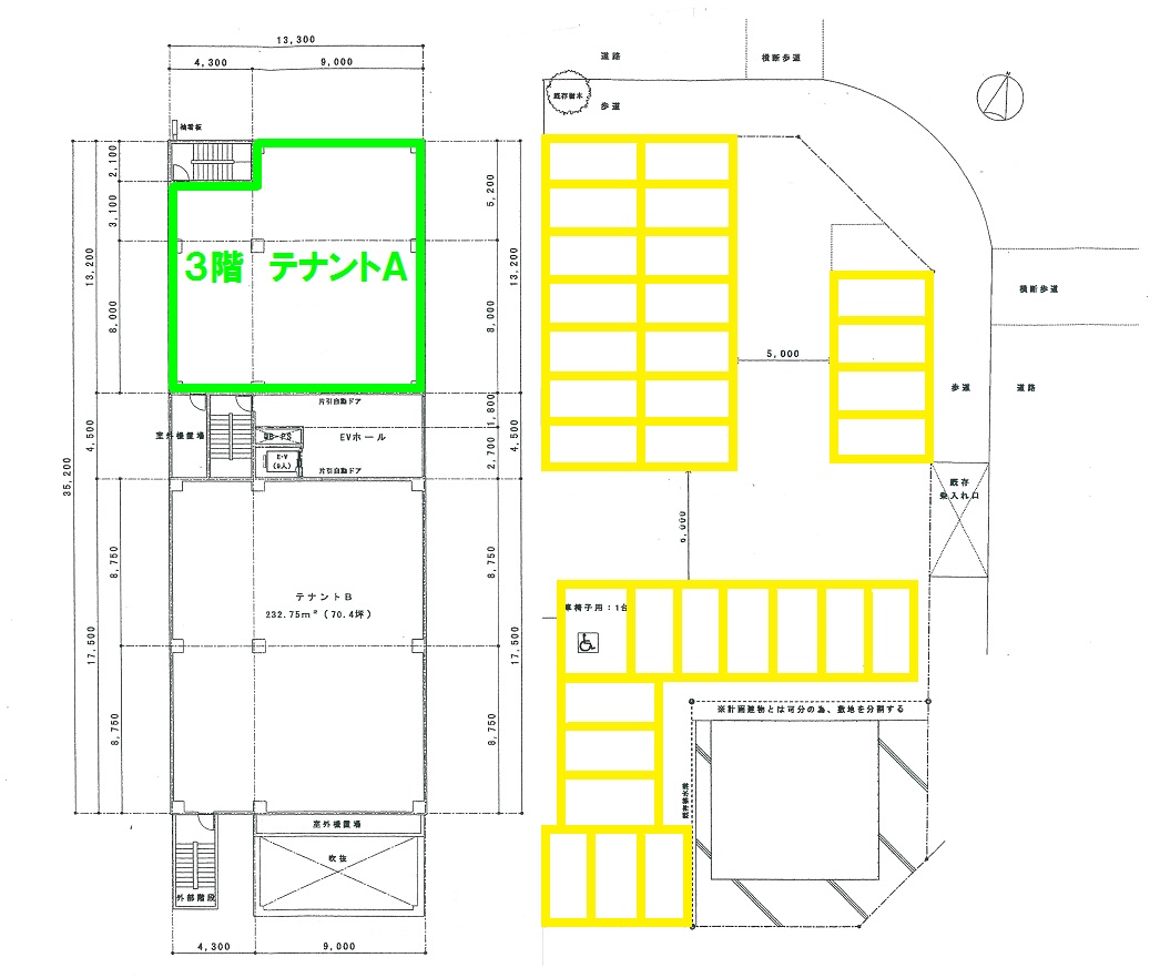
| 面積 | 166.74m² | 計測方式 | 壁芯 |
| バルコニー | 向き | ||
| 建物階数 | 地上3階 | 部屋階数 | 3階 |
| 部屋/区画番号 | 3階 Aタイプ | 総戸/区画数 | --- |
| 建物構造 | RC | ||
| 間取内容 | |||
| 駐車場 | ※お客様専用駐車場あり |
取引態様 | 仲介 |
| 引渡/入居時期 | 即時 | 現況 | 空家 |
| 周辺環境 | |||
| 設備・条件 |
共益費:共用部分電気代、保守点検費、セキュリティー、お客様駐車費用等が含まれます。床・壁については既存コンクリートスラブのまま引渡しとなります。給排水管配管、その他内装工事はテナント工事となります。
|
||
| 物件番号 | 20803349 | ||
| 物件カテゴリー | |||
☆医療テナントビル☆内装一部工事済!近隣:役場、幼稚園、スーパーがあり三面道路に位置する好立地な場所です。建物警備セキュリティも完備され、夜間・休日でも安心!!①空調機器設置②照明器具あり
物件掲載内容と現況に相違がある場合は現況を優先といたします。
物件周辺マップ
Loading...
ご注意
- 物件によっては正確な位置を示していない場合がございます。
- 現況が表示された内容と異なる場合は現況優先といたします。
- 表示されてる地図はGoogle社より提供されてるデータに基づいたものであり、表示内容についての責任は負いかねます。












